Das Induktions-Kochfeld mit BratSensor Plus: erzielen Sieein perfektes Bratergebnis dank automatischer Temperaturregulierung.
Hauptmerkmale:
- DirectSelect Premium:direkte, einfachste Auswahl der gewünschten Kochzonen, Leistungsstufen und zusätzlicher Funktionen.
- PerfectFry:fu?r einen optimalen Bräunungsgrad des Bratguts dank Sensorsteuerung in 5 Leistungsstufen.
- Erweiterte FlexInductions-Zone:noch mehr Flexibilität durch Zusammenschalten der Kochzonen zu einer durchgehenden Fläche, die bei größeren Töpfen noch erweitert werden können.
- FlexInductions-Zone:Flexibles Zusammenschalten von Kochzonen zu einer durchgehenden Fläche für kleine Töpfe bis hin zu großem Sonderzubehör
- Induktion:schnelles, punktgenaues Kochen, leichte Reinigung und geringer Energieverbrauch.
Highlights
Komfort
Leicht und einfach mit nur einem Fingertip zu bedienen
Direct-Select Premium bietet mit ganzen 30 cm Länge beim Kochen höchsten Bedienkomfort. Damit wird die Wahl der gewünschten Kochstufe und der ergänzenden Funktionen intuitiv einfach, mit nur einem Fingertip wird die gewünschte Stufe angewählt.
Denn unsere Bedienung zeigt nur die Funktionen an, die Sie in dem Moment auch wirklich benötigen. Ausgeschaltet ist die Bedienung nicht sichtbar und sorgt für ein durchgehendes und elegantes Aussehen des Kochfelds.
Schneller mit dem Kochen starten.
Die QuickStart-Funktion erkennt, wo Sie den Topf hingestellt haben, und zeigt die zugehörige Kochzone automatisch auf der Bedienleiste an. Sie können sofort mit dem Kochen anfangen und die gewünschte Kochstufe für den Topf wählen.
Endlose Flexibilität, aber nur ein Ergebnis: Perfektion!
Sie können Ihr Kochfeld wie ein normales Induktionskochfeld mit vier getrennten Kochzonen nutzen oder diese zu zwei großen, durchgehenden FlexInduction-Zonen zusammenfassen. Dadurch entsteht mehr Stellfläche, auf der Sie Ihr Kochgeschirr ? ganz gleich, welche Größe oder Form sie haben ? frei anordnen können, wie Sie es möchten. Dank der erweiterbaren FlexInduction-Zone haben sogar übergroße Töpfe und Pfannen mit bis zu 30 cm Durchmesser viel Platz neben 40 cm langen Brätern und Zubehör.
Übernahme der Koch-Einstellungen.
Wenn Sie einen Topf während des Kochens von einer Kochzone auf eine andere schieben, muss die Temperaturstufe nicht einzeln eingestellt werden. Die neue Kochzone übernimmt einfach die alten Einstellungen, wie Kochtemperatur und -dauer ? Sie müssen den Vorgang nur mit einem Knopfdruck bestätigen.
Leistung
Beste Bratergebnisse
Beim Braten ist die Temperatur entscheidend. Bei zu hoher Temperatur brät auch das beste Steak zu schnell durch oder brennt an. Ganz gleich, ob Sie Ihr Steak Rare, Medium oder Well Done bevorzugen: So einfach haben Sie Ihr Fleisch noch nie gebraten. Der PerfectFry Bratsensor regelt die Temperatur beim Braten kontinuierlich und passt sie bei Bedarf ganz genau an.
Kocht schneller als man denkt.
Manchmal brauchen Sie beim Kochen ein kleines bisschen Extra-Power. Die verbesserte PowerBoost-Funktion bei unseren Induktionskochfeldern stellt zusätzliche Leistung zur Verfügung, wenn der Kochvorgang beschleunigt werden muss. Beispielsweise können Sie jetzt 2 Liter Wasser fast 50 % schneller zum Kochen bringen als auf einem herkömmlichen Elektrokochfeld.
Kulinarischer Erfolg vorprogrammiert.
Mit MoveMode wird das Kochen ausgesprochen intuitiv und komfortabel. In der Vergangenheit haben Sie Ihre Suppe auf Stufe 9 erhitzt und anschließend zuerst auf Stufe 5 und dann auf Stufe 1 köcheln lassen, während Sie die Temperatur bei herkömmlichen Kochfeldern selbst eingestellt haben. Jetzt nimmt Ihnen der MoveMode diese Arbeit ab. Nach Aktivierung des MoveMode werden die FlexInductions Zonen in drei unterschiedliche Bereiche mit den voreingestellten Leistungsstufen 1, 5 und 9 unterteilt.
Technische Daten:
Design:
- HighSpeed-Glaskeramik, dekorlos
- Comfort-Profil
Komfort:
- Direct Select Premium
- PerfectFry Bratsensor mit 5 Temperaturstufen
- ReStart
- QuickStart
- TopControl-Digitalanzeige
- Stoppuhr für Kochfeld
- MoveMode
- Timer mit Abschaltfunktion je Kochzone
Schnelligkeit:
- PowerBoost-Funktion für alle Kochzonen
Leistung und Größe:
- 4 Induktions-Kochzonen mit Topferkennung
- erweiterte FlexInduktions-Zone
- 17 Leistungsstufen
Umwelt und Sicherheit:
- Energieverbrauchsanzeige
- Sicherheitsabschaltung
- Kindersicherung
- 2 stufige Restwärmeanzeige je Kochzone
- PowerManagement Funktion
- Wischschutzfunktion
- Hauptschalter
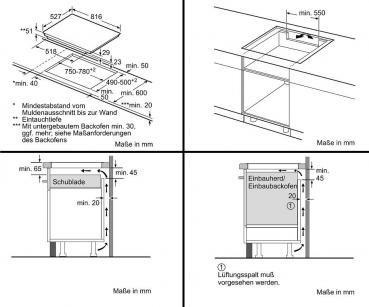
Maße:
- Anschlusswert: 7,4 kW
- Anschlusskabel (1,1 m)
- Anschlusskabel beigelegt in Verpackung
- Min. Arbeitsplattenstärke: 30 mm
- Gerätemasse (HxBxT): 51 x 816 x 527 mm
- Einbaumasse (BxT): 780 x 500 mm
- Nischenmaße (cm) : 5,1 x 75-78 x 49-50
- Kombinierbar mit Glaskeramik-Kochstellen im Komfort-Design
| Produkttyp | Induktionskochfeld |
| Bauart | Edelstahl-Rahmen |
| Farbe | schwarz |
| Höhe [cm] | 5,1 |
| Breite [cm] | 81,6 |
| Tiefe [cm] | 52,7 |
| Bedienung | Sensor-Tasten |
| Material | CERAN |
| Anzahl Kochzonen | 4 |
| Beheizungsart | Induktion |
| Vario-Kochzone | nein |
| Ausschnittsbreite [cm] | 80 |